TOP > 中央区 > 八丁堀・茅場町 > VORT茅場町イースト 1F
  • 物件名

    VORT茅場町イースト 1F

  • エリア

    東京都 中央区 新川 1-16-4 マップを見る

  • 最寄り駅

    茅場町駅(6分)/水天宮前駅(8分)/八丁堀(東京都)駅(9分)

この物件についてお問い合わせ

物件概要

  • 賃料

    お問い合わせください。

  • 共益費

    賃料に含む

  • 合計

    お問い合わせください。

  • 坪単価

    非公開

  • 敷金/保証金

    10ヶ月(保証会社利用)

  • 入居可能日

    即 日

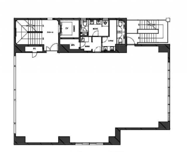
  • フロア

    1F

  • 面積

    46.3坪

基準階面積

  • 竣工

    1986年11月

  • リニューアル

    2016年8月

  • 規模

    1F~9F

  • 基準階面積

    確認中(0.00m2)

  • 用途/仕様

    賃貸事務所/オフィス

  • 耐震

    新耐震

  • エレベーター

    1基

  • 空調

    個別空調

  • 天井高

    2500mm

  • 床仕様

    OAフロア

  • トイレ

    男女別 室内

  • 駐車場

    この物件についてお問い合わせ

    ※ご紹介させていただいた物件の取引態様は媒介です。

    ※募集条件が未定の物件は、指定された賃料の範囲とは異なる場合がありますのでご了承ください。

    ※金額は全て坪単価で表示しています。

    ※賃料、共益費など課税対象となる金額には、別途消費税が加算されます。

    ※契約面積・金額が㎡表示の物件は、坪に換算しています。(坪換算値=3.3058)

    ※表示されている賃貸条件や建物設備は変更になる可能性がありますのでご了承ください。

    ご紹介させていただいた物件は、商談中または契約済み場合がありますのでご了承ください。

    ご紹介させていただいた物件で契約が成立した場合は、仲介手数料として賃料の1カ月分を申し受けます。